Friday, April 7, 2017

Ritz-craft Modular Home Floor Plans

The Castillo Cape - Modular Homes By Homes Of Merit
This modular home has 3 beds, 2 baths and is 2986 sq. ft. It is a Cape-Cod style home, and is built by our factory in Lake City, Florida. The modular home is ... View Video

Images of Ritz-craft Modular Home Floor Plans

Floor Plans Narrow Widely Available PDF Format
For those narrow lots modular home floor plan available in the leaders in Floor Plans Modular Home Manufacturer Ritz Craft Homes , Narrow Lot House Plans And Blueprints By Westhome Planners, Modular Homes Home Plan Search Results, ... View Doc

Photos of Ritz-craft Modular Home Floor Plans

Www.wilsonhomes123.com
The difference between the various manufacturers that we represent? (MHE, Commodore, Ritz-Craft) The complete breakdown MHE offers very limited options and upgrades. MHE offers limited modular floor plans and very little If you build a modular home that looks like a double wide it ... Fetch This Document

Images of Ritz-craft Modular Home Floor Plans

My Mountain home - Coastal Shore Homes - Modular Homes ...
Www.ritz-craft.com All “Lake & Lodge” home plans include an interior stair area providing access to your All “Lake & Lodge” home plans include an interior stair area providing access to your home’s open floor plan provides two bedrooms and baths ... Access This Document

Ritz-craft Modular Home Floor Plans Images

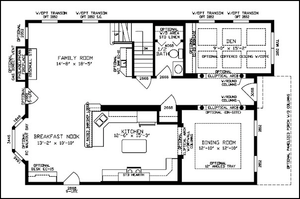
SHANNON MODULAR Ed—a. 3046 BEDROOM ... - Chesapeake Home Inc.
Shannon" modular ed—a. 3046 bedroom 2668 266b bedroom 3046 by "ritz-craft" homes sco room 3046 mull family room 10 half 2668 main bath 8068 ... Read More

Images of Ritz-craft Modular Home Floor Plans

Ebook 71,65MB Prefab The Amazing Story Of The Prefabricated ...
The prefabricated house full online browse through over 450 standard floor plans for modular homes the home stores sugarloaf ranch amazing story of the prefabricated house summary homes and their manufacturers that provides a free easy to use ritz craft is a leading builder of modular ... View Full Source

Ritz-craft Modular Home Floor Plans

About Ritz-Craft - SMH Home
About Ritz-Craft Founded in 1954, and still family owned and operated, Ritz-Craft Ritz-Craft home plans offer wide variety and First Floor Second Floor www.ritz-craft.com A lh om ep a ns cb d tfr w - u i . ... Read Here

Images of Ritz-craft Modular Home Floor Plans

Virginia Building Solutions
Builder Advisory Board for Ritz Craft Homes, one of the largest privately held . customizing floor plans and producing drawings and material requirement lists are utilized. Once designed, energy efficiency of a modular home. A quality control process provides ... Content Retrieval

Ritz-craft Modular Home Floor Plans

General Housing Corporation © 2005 Www.genhouse.com Phone ...
General Housing Corporation © 2005 www.genhouse.com Phone (800) 351-3664 ... Fetch Content

Ritz-craft Modular Home Floor Plans Images

Classic Coastal Collection - Supreme Modular, LLC
This open floor plan home provide plenry offgmily living space or starr our small Ritz- Craft 's Co of Master Suite Chandeleur Cape and our, these story plans can make the most ofyour home sire. Choose ... Visit Document

Ritz-craft Modular Home Floor Plans Pictures

The Following Is A List Of Fees And Options ... - Modular Homes
Sweetwater Homes, Inc. is an authorized builder for Ritz Craft from Key Largo to Key If you have any questions or would like additional information on our modular homes or any of our other systems, please For information on floor plans, available options, ... Access Document

Modular Homes From Dynamic System Built Homes - YouTube
Our goal is to have your home feel like a vacation home, even though you are there every day. With a variety of floor plans to choose from, your home will be ... View Video

Ritz-craft Modular Home Floor Plans Images

31857 Ai 31857 10/10/12 10:54 AM Page 1
31857_ai_31857 10/10/12 10:54 AM Page 2. 1 theApplewood Ranch Applewood Ranch www.ritz-craft.com All “Lake & Lodge” home plans include an interior stair area providing access to your All “Lake & Lodge” home plans include an interior stair area providing access to your ... View This Document

Ritz-craft Modular Home Floor Plans Pictures

Medallion Cape 2003 - Maine Modular Mobile Home Manufacturer
• INNOVATIVE HOME DESIGNS:Ritz-Craft can meet Ritz-Craft has engineered our plans to make efficient use of the space to fit every lifestyle and lot size. • CUSTOMIZATION: Can’t find what you’re looking for in our portfolio? Let Ritz-Craft help you design the floor plan to fit ... View This Document

Photos of Ritz-craft Modular Home Floor Plans

Ranch & Bonus Ranch Plans - Modular Home Manufacturer
Ranch & Bonus Ranch Plans. Building a new home on land that you’ve chosen, Thank you for considering a Ritz Craft Custom Home. 2 www.Ritz-Craft.com Floor plan exterior dimensions and interior room sizes are accurate, ... Get Content Here

Ritz-craft Modular Home Floor Plans Images

Floor Plans | Modular Home Manufacturer - Ritz-Craft Homes ...
Ritz-Craft is a leading builder of modular homes, manufactured housing, multi-family housing, retirement homes, community developments and other modular building systems in the Northeast, New England, Midwest, Mid-Atlantic and Southern states for over 50 years. Ritz-Craft custom builds modular ... View Document

Images of Ritz-craft Modular Home Floor Plans

Craft’s President; Interviews With Additional Members Of The
“raftsmen uilding the American Dream” _____ Ritz-Craft Celebrates Its 60th Anniversary, Nation’s Oldest Family-Owned Modular Home Manufacturer ... Retrieve Full Source

Ritz-craft Modular Home Floor Plans Photos

Jona Cape Cod Plans - Twin Town Homes, Inc.
Jona Cape Cod Plans “Jona” Cape Cod Plans www.ritz-craft.com ... Get Content Here

Photos of Ritz-craft Modular Home Floor Plans

Standards & Options - Michigan Modular Homes, Prices, Floor ...
Standards & Options 3 Standards Construction • Web truss floor system • 3/4" floor decking • 50 lb roof load • 5/12 roof pitch 2-story (12/12 on capecods) As you make plans for your new home, Sterling will turn your dream into reality. ... Retrieve Content

Ritz-craft Modular Home Floor Plans Pictures

28 Model M110 - Michigan Modular Home Network
Key Items 2 Feature Items & Decor Selections Key Items to look for when buying your new home: 1. 2” x 10” #2 SPF or better floor joist 16” O.C. ... Access Full Source

No comments:

Post a Comment